Maison construite en 2022, offrant de belles prestations : vide sanitaire, fondations de 120, deux terrasses, climatisation gainable réversible, ballon thermodynamique, volets roulants centralisés, drainage du terrain, portail et portes de garage motorisés…DPE : A !
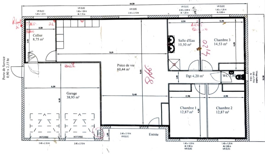
D’une surface habitable de 126 m², elle dispose également d’un double garage. Le tout est implanté sur un terrain entièrement clos de 3 300 m², équipé d’une clôture rigide. Située sur les hauteurs de Vichy, la propriété bénéficie d’une vue dominante sur deux versants. L’entrée s’ouvre sur une vaste pièce de vie traversante de 60,5 m², très lumineuse grâce à ses baies vitrées donnant accès aux deux terrasses. La cuisine ouverte est entièrement aménagée et équipée, cellier/buanderie entre le garage et la cuisine. La partie nuit comprend trois belles chambres (12,87 m² – 12,87 m² – 14,53 m²), ainsi qu’une salle de bains entièrement carrelée, dotée d’une baignoire et d’une douche, un WC suspendu avec lave-mains complète l’ensemble. Grand garage double carrelé. Chauffage et climatisation gainable (PAC). DPE réalisé le 25/10/2022, A (51), estimation des coûts annuels d’énergie comprise entre 471€ et 637€ pour un usage standard, prix moyens des énergies indexés au 01/01/2021 (abonnements compris) / GES: A (1). 360 000€ HAI – 340 000€ net vendeur soit 5.88% TTC d’honoraires charges acquéreurs. Les informations sur les risques auxquels ce bien est exposé sont disponibles sur le site Géorisques : www.georisques.gouv.fr
MAISONS : 15MN VICHY, SUR LES HAUTEURS, VUE SUPERBE (SAINT YORRE - 03270)
Données
Financières
Estimation
Dépenses Annuelles Energie
Données
énergétiques
Logement extrêmement performant
51 kWh/m2/an
Logement extrêmement peu performant
émission de CO2, peu importantes
1 kWh/m2/an
émission de CO2, très importantes
NOS
COORDONNEES
04 70 96 13 58
deschampsimmobilier@yahoo.fr
2 rue du Président Wilson
03200 VICHY














