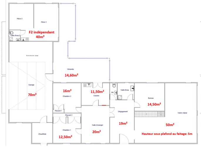
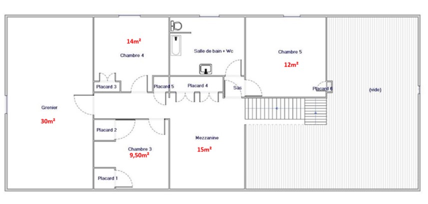
Havre de paix à 5mn du en voiture du centre de Cusset, propriété de 253m² habitables (+ garage de 70m²) sur 1.2ha de jardin avec piscine et prairie, vue dominante (notamment sur les Monts d’Auvergne). Entrée de 19m² avec marbre au sol et cheminée, séjour de 50m² avec marbre au sol et cheminée (hauteur sous plafond au faitage de 5m), portes fenêtres sur terrasse et piscine, salle à manger de 20m² avec poêle à bois, cuisine ouverte sur véranda, 3 chambres, salle d’eau, WC. Appartement F2 indépendant de 40m² avec kitchenette et salle d’eau avec WC. Garage de 70m² avec porte automatisée, chaufferie. A l’étage: mezzanine (bureau) de 15m², 3 chambres, salle de bains avec WC, grenier. Cave. 3 abris de jardin. Assainissement individuel. Chauffage fioul, DPE réalisé le 13/12/2024, E (272) / GES: D (48), estimation des coûts annuels d’énergie comprise entre 6210€ et 8490€ pour un usage standard, prix moyens des énergies indexés sur les années 2021, 2022 et 2023 (abonnements compris). 349 000€ HAI – 334 000€ net vendeur soit 4.50% TTC d’honoraires charges acquéreurs. Les informations sur les risques auxquels ce bien est exposé sont disponibles sur le site www.georisques.gouv.fr. Prévoir travaux.
MAISONS : PROPRIÉTÉ SUR 1.2HA 5MN CUSSET CENTRE (CUSSET - 03300)
Données
Financières
Estimation
Dépenses Annuelles Energie
Données
énergétiques
Logement extrêmement performant
272 kWh/m2/an
Logement extrêmement peu performant
émission de CO2, peu importantes
48 kWh/m2/an
émission de CO2, très importantes
NOS
COORDONNEES
04 70 96 13 58
deschampsimmobilier@yahoo.fr
2 rue du Président Wilson
03200 VICHY




















