EXCLUSIVITÉ –– Appartement d’exception 119 m² avec terrasse 75 m² + garage double – Copropriété récente.
Secteur : Calme, en bordure du Sichon, entre quartier Jeanne-d’Arc et plan d’eau.
Résidence : Copropriété de standing (2013) avec jardin privatif.
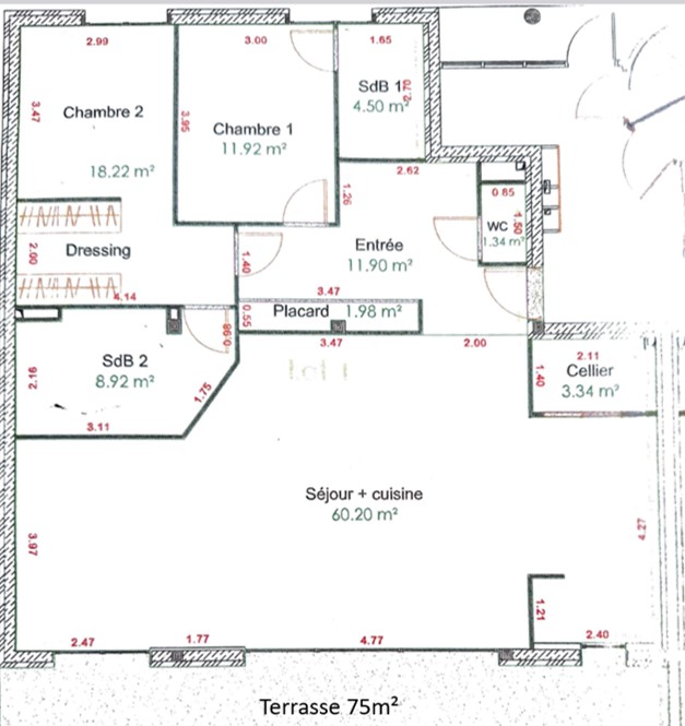
Description : Vaste séjour de 60 m² avec cuisine ouverte, lumineux grâce à de larges baies vitrées ouvrant sur une superbe terrasse de 75 m², espace bureau, 2 chambres dont une suite parentale (chambre + dressing + salle d’eau + WC) + une seconde chambre avec salle d’eau privative, WC indépendant. Possibilité 3e chambre (cloisonnement du séjour).
Prestations : Climatisation réversible gainable, baie vitrées, terrasse plein calme.
Garage : Grand garage double de 30 m² avec porte automatisée.
Performances énergétiques : DPE du 09/06/2025 : B (88) – GES : A (2)
Estimation coûts énergie : 840 € à 1 200 €/an (usage standard, prix 2021–2023 abonnements inclus)
Charges / fiscalité : Charges copropriété : 1 600 €/an, Taxe foncière : 2 520 €
Prix : 525 000 € HAI (500 000 € net vendeur – honoraires 5% TTC charge acquéreur)
Produit rare sur le secteur ! Les informations sur les risques auxquels ce bien est exposé sont disponibles sur le site Géorisques : www.georisques.gouv.fr
APPARTEMENTS : EXCLUSIVITÉ - APPARTEMENT DE PRESTIGE (VICHY - 03200)
Données
Financières
Estimation
Dépenses Annuelles Energie
Données
énergétiques
Logement extrêmement performant
88 kWh/m2/an
Logement extrêmement peu performant
émission de CO2, peu importantes
2 kWh/m2/an
émission de CO2, très importantes
NOS
COORDONNEES
04 70 96 13 58
deschampsimmobilier@yahoo.fr
2 rue du Président Wilson
03200 VICHY














