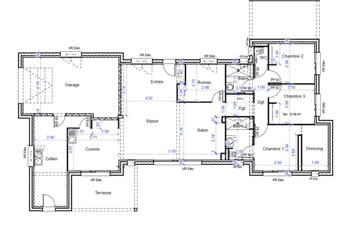
Située dans un quartier calme et prisé de Bellerive sur Allier, superbe villa contemporaine neuve. Construction de grande qualité par un bâtisseur local reconnu, finitions soignées. 140m² habitables sur un terrain de 900m² entièrement clos. Grande pièce de réception de 57m² avec cuisine ouverte (totalement aménagée/équipée), suite parentale avec salle d’eau avec douche à l’italienne, WC et dressing aménagé, deux autres chambres avec placards, bureau avec placard, seconde salle d’eau avec douche à l’italienne, second WC, dégagement avec placard. Grand cellier/buanderie aménagé. Garage de 29m² et porche couvert. 900m² de terrain clôturée avec portail motorisé et portier vidéo connecté avec smartphone, volets roulants électriques connectés avec smartphone, terrasse couverte devant la cuisine, chauffage avec climatisation réversible avec solution gainable en plafond, ballon thermodynamique, maison RE2020. DPE réalisé le 20/10/2023: A (37) / GES A, estimation des coûts annuels d’énergie comprise entre 390€ et 560€ pour un usage standard, abonnement compris (prix moyens des énergies indexés au 01/01/2021). 535 000€ HAI - 510 000€ net vendeur, soit 4.90% TTC d'honoraires charges acquéreur. Les informations sur les risques auxquels ce bien est exposé sont disponibles sur le site Géorisques : www.georisques.gouv.fr
MAISONS : MAISON NEUVE (BELLERIVE SUR ALLIER - 03700)
Données
Financières
Estimation
Dépenses Annuelles Energie
Données
énergétiques
Logement extrêmement performant
37 kWh/m2/an
Logement extrêmement peu performant
émission de CO2, peu importantes
1 kWh/m2/an
émission de CO2, très importantes
NOS
COORDONNEES
04 70 96 13 58
deschampsimmobilier@yahoo.fr
2 rue du Président Wilson
03200 VICHY













